ChatsApp
U$S 131.524
Venta

Descripción

Proyecto: Pres Barrios Amorin
Entrega: fines 2027
Comisión Inmobiliaria: 3% + iva

El nuevo Proyecto Pres ofrece Un edificio con amplias características residenciales y espacios comunes excepcionales se erige en una ubicación privilegiada en el corazón de la ciudad.

Conectado a una excelente red de servicios y una variada oferta gastronómica, en un vibrante barrio universitario.
Ubicándose dentro del polígono de exoneración de la Agencia Nacional de Vivienda, se enmarca en la normativa de Vivienda Promovida

El edificio cuenta con subsuelo, planta baja, y 10 pisos sobre esta, teniendo en su último piso, un salón común, patios con vegetación, mirador, parrillero, fogonero y laundry.

El proyecto establece una relación entre la ciudad y el ámbito doméstico, integrándose en un barrio en proceso de transformación.

Los materiales utilizados y terminaciones rinden homenaje a una época donde la calidad constructiva era la norma y no la excepción.

El edificio se corona con un generoso salón común y diversos espacios diseñados para inspirar y acoger una multiplicidad de usos. Los patios con vegetación susurran serenidad, el mirador invita a contemplar horizontes infinitos, y el parrillero y fogonero prometen momentos de conexión.

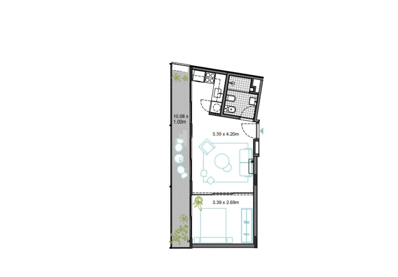
Características de la propiedad

  • Habitaciones1 Habitación
  • BañosBaños: 1
  • SuperficieSuperficie: 46,00 m²
  • Superficie ConstruidaSuperficie Construida: 36,00 m²
  • Superficie BalconesSuperficie Balcones: 10m²
  • ParrilleroParrillero
  • OrientaciónOrientación: Oeste
  • DisposiciónDisposición: Frente
  • Propiedad HorizontalPropiedad Horizontal
  • PisoPiso: 7
  • Aptos por pisoAptos por piso: 3
  • Pisos EdificioPisos Edificio: 10
  • AscensorAscensor
  • Unidad: 701
  • Etapa: Lanzamiento !

Contactate con nosotros

captcha

¿Quiénes somos?

Una empresa orientada a ofrecer un servicio integral, transparente y cercano en el mercado inmobiliario.